Nerture - Spirit of Unity

Healthcare Design 2013

Nerture is a seniors’ care home facility that is warming and timeless, creating a welcoming and nurturing environment that celebrates the spirit of unity.  Its design provides residents with a smooth transition from home, while providing the care team and visitors a comfortable stay.

Connection    Warmth     Memories     Friendships

They create warmth and nurture through closeness, senses, and interactions.  The shape is round and continuous, demonstrating the unity of connections between human interactions.  Continuous and adaptable lines represent the interactions as they harmonize vertical lines indicating growth.  Union and links are created through memories and happiness. This is a place for nurture, holding warmth, friendships, and love.

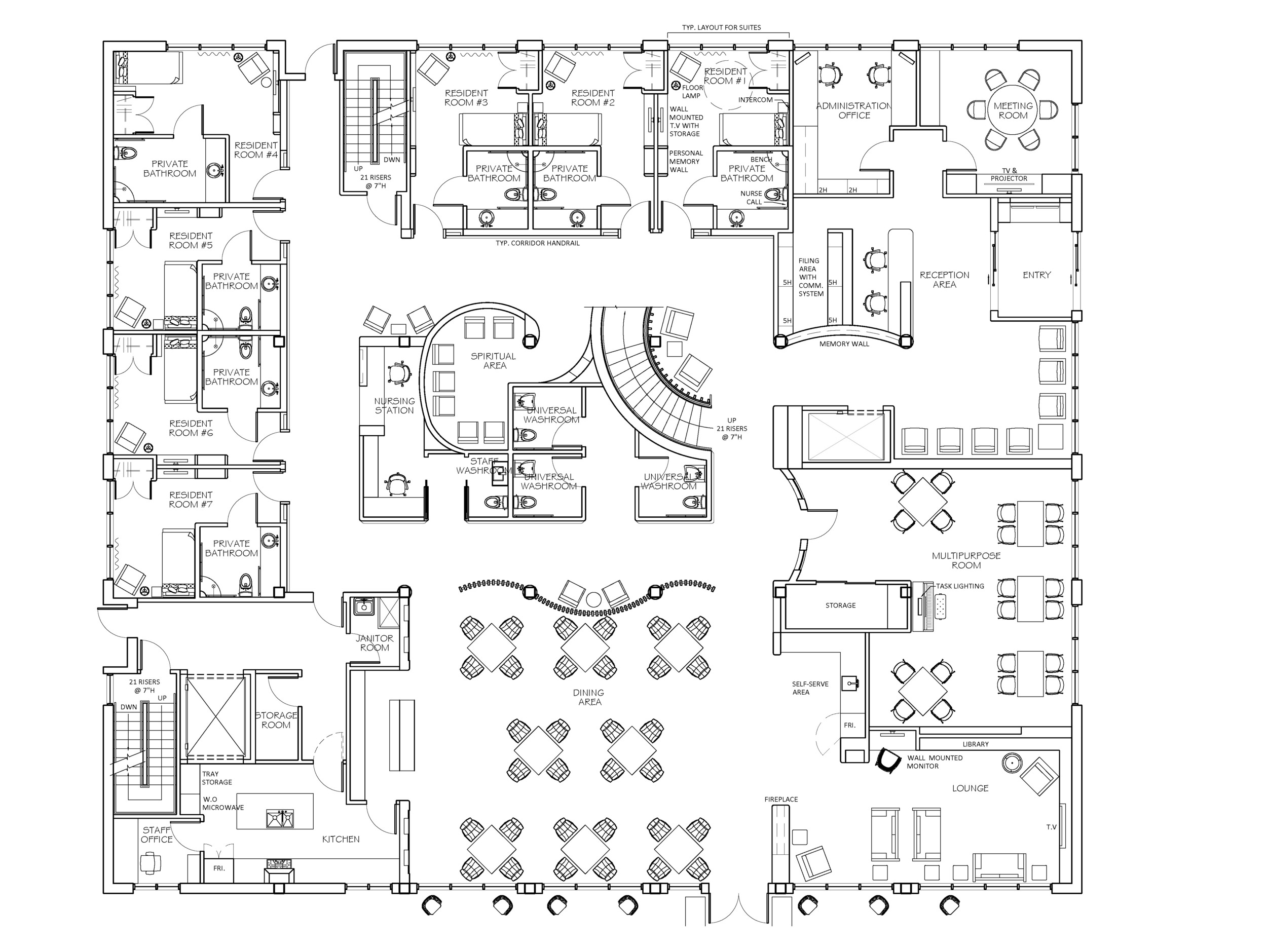
Floor Plan

Conceptual Model

Conceptual Model

Inspired by the appearance and characteristics of a nest, the organic design of the facility speaks to the continuity of connections.  The softened yet sturdy appearance harmonizes the strength of human spirit.   Subtle and curvilinear lines accentuate interior forms and scale in vertical and horizontal planes.  To create contrast, horizontal lines are portrayed in low profile, illustrating the weight and center point of nests.  Light is refracted and revealed through soft and weaved openings.  Reveals and recessed lighting are integrated into horizontal and connecting lines of staircase and millwork details.  Materials reflect the integrity of nests.  Warm and sturdy materials, such as wood, contrast soft and textural materials to create visual and sensual interest.   

Nerture celebrates the bonding of human connections. Through closeness, interactions, and senses, memories and happiness are created for Nerture’s occupants. This is a place for nurture, holding in warmth, friendships, and love.  

  Section Elevation

AutoCAD 3D Model of Lounge

AutoCAD 3D Model of Lounge